Sie sind hier: >>> Aktuelles
Aktuelles
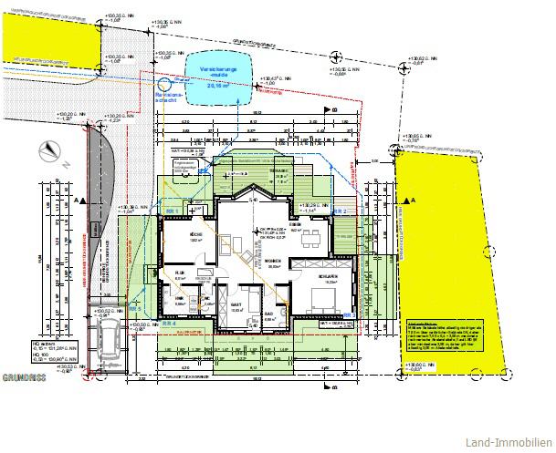
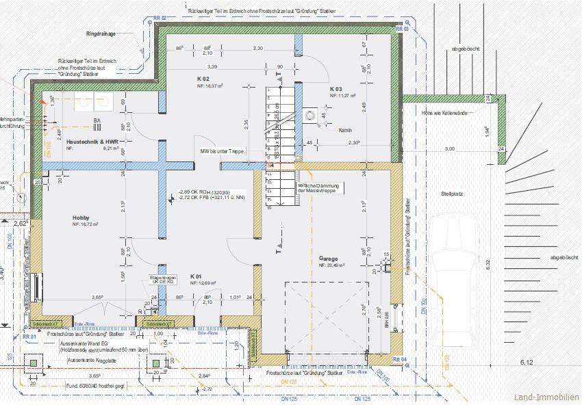
Nähe Bitburg Schwedenhaus Projekt, Mai 2018
Juli 2023...ein Schwedenhaus in Rheinland-Pfalz... Schwedenhaus mit traditioneller schwedischer Eingangsveranda, Montage Ausbauhaus im Jahr 2018 in Rheinland-Pfalz, im Eifelkreis Bitburg-Prüm, Nähe Trier und Luxemburg...
>>>Effizienzhaus, Luft-/Wasser-Wärmepumpe, Eingangsveranda...
Schwedenhaus Projekt Rheinland-Pfalz TrierSaarburg
Frühjahr 2023...Schwedisches Holzhaus...Schweden-Holzhaus 1,5-geschossig, KfW Effizienzhaus 55 - Landkreis Trier-Saarburg - Rheinland-Pfalz...
>>> EnergieSpar-Bodenplatte, überdachte Eingangsveranda...
Schwedisches Holzhaus - Trier/ Rheinland-Pfalz
Februar 2023...Schwedisches Holzhaus...Schweden-Holzhaus Bungalow, 1-geschossig, KfW Effizienzhaus 55 - Trier - / Rheinland-Pfalz...
>>> EnergieSpar-Bodenplatte, lichtdurchflutete Räume...
Bauernhaus Projekt Rheinland-Pfalz TrierSaarburg
Weitere Projekte ab 2023...aktuelle Planung, Erweiterung/Ausbau/Dorferneuerungsmaßnahme...Bauern- und Scheunenhaus 2,5-geschossig, - Landkreis Trier-Saarburg - Rheinland-Pfalz...
>>> Einzelsatteldachgauben, Photovoltaik...
Schwedenhaus Projekt Rheinland-Pfalz TrierSaarburg
Januar 2023...aktuelles Schwedenhaus Projekt...Schweden-Holzhaus 1,5-geschossig, KfW Effizienzhaus 55 - Landkreis Trier-Saarburg - Rheinland-Pfalz...
>>> überdachte Eingangsveranda, Glasgiebel, Schleppgauben...
Schwedisches Holzhaus - Trier/ Rheinland-Pfalz
Oktober 2022...Schwedisches Holzhaus...Schweden-Holzhaus Bungalow, 1-geschossig, KfW Effizienzhaus 55 - Trier - / Rheinland-Pfalz...
>>> EnergieSpar-Bodenplatte, energiesparend, lichtdurchflutete Räume...
Schwedisches Holzhaus - Trier/ Rheinland-Pfalz
Oktober 2022...Schwedisches Holzhaus Richtfest...Schweden-Holzhaus Bungalow, 1-geschossig, KfW Effizienzhaus 55 - Trier - / Rheinland-Pfalz...
>>> EnergieSpar-Bodenplatte, energiesparend, lichtdurchflutete Räume...
Schwedisches Holzhaus - Bremen / Niedersachsen
September 2022...Schwedisches Holzhaus...Schweden-Holzhaus 1,5 geschossig, KfW Effizienzhaus 55 - N. Bremen / Niedersachsen...
>>> EnergieSpar-Bodenplatte, energiesparend, giebelseitige Eingangsveranda...
Schwedisches Holzhaus - Trier / Rheinland-Pfalz
August 2022...neues Holzhaus, Richtfest...Schweden-Holzhaus, KfW Effizienzhaus 55 - Nähe Bremen, in Niedersachsen...
>>> EnergieSpar-Bodenplatte, energiesparend, lichtdurchflutete Räume...
Schwedisches Holzhaus - Trier / Rheinland-Pfalz
Juli 2022...neues Holzhaus Projekt...Schweden-Holzhaus Bungalow, KfW Effizienzhaus 55 - Trier, in Rheinland-Pfalz...
>>> EnergieSpar-Bodenplatte, energiesparend, lichtdurchflutete Räume...
Schwedisches Holzhaus - Bremen / Niedersachsen
Juni 2022...neues Holzhaus Projekt...Schweden-Holzhaus 1,5 geschossig, KfW Effizienzhaus 55 - N. Bremen / Niedersachsen...
>>> EnergieSpar-Bodenplatte, energiesparend, giebelseitige Eingangsveranda...
Skandinavische Bungalow-Projekte - Rheinland-Pfalz
April 2022...neue Holzhaus Projekte...Schweden-Holzhaus Bungalows, Niedrigenergiehäuser - Nähe Trier, in Rheinland-Pfalz...
>>> EnergieSpar-Bodenplatten, energiesparend, sehr stilvolle Varianten...
Schwedenhaus Projekt Rheinland-Pfalz TrierSaarburg
Februar 2022...aktuelles Schwedenhaus Projekt...Holzhaus in Osburg - Rheinland-Pfalz, im Landkreis Trier-Saarburg...
>>> überdachte Eingangsveranda, Glasgiebel, Schleppgauben...
Schwedenhaus Projekt Rheinland-Pfalz, N.Luxembourg
Dezember 2021...aktuelles Schwedenhaus Projekt...Holzhaus in Rheinland-Pfalz, nähe Luxemburg, im Landkreis Trier-Saarburg...
>>> Kellergeschoss mit Garage, Glasgiebel, Luft-Wasser-Wärmepumpe...
Schwedisches Holzhaus - Trier / Rheinland-Pfalz
November 2021...neues Holzhaus Projekt...Schweden-Holzhaus Bungalow, KfW Effizienzhaus 55 - Trier, in Rheinland-Pfalz...
>>> EnergieSpar-Bodenplatte, energiesparend, lichtdurchflutete Räume...
Schwedenhaus Rheinland-Pfalz aktuell Oktober 2021
November 2021...Schwedenhaus Rheinland-Pfalz...neues Holzhaus Projekt...Schweden-Holzhaus, KfW Effizienzhaus 55 - Nähe Trier, in der Eifel - im Eifelkreis Bitburg-Prüm, Verbandsgemeinde Speicher
>>> überdachte Eingangsveranda, Kathedraldecke, traditionelles Schwedenrot...
Schwedisches Ofenbauhandwerk
Herbst 2021...Produkte aus unserem Lieferprogramm/Öfen...original schwedischer Ofenbau
Diese schwedische Manufaktur steht für Handwerk. In Handarbeit werden liebevoll klassische- und moderne Öfen hergestellt.
>>>demnächst mehr
Schwedenhaus Rheinland-Pfalz aktuell Oktober 2021
Oktober 2021...Schwedenhaus Rheinland-Pfalz...neues Holzhaus Projekt...Schweden-Holzhaus, KfW Effizienzhaus 55 - Nähe Trier, in der Eifel - im Eifelkreis Bitburg-Prüm, Verbandsgemeinde Speicher
>>> EnergieSpar-Bodenplatte, traditionelles Schwedenrot...
Schwedenhaus Nähe Trier in Rheinland-Pfalz
September 2021...neues Holzhaus Projekt...Schweden-Holzhaus, KfW Effizienzhaus 55 - Nähe Trier,
in der Eifel - im Eifelkreis Bitburg-Prüm, Verbandsgemeinde Speicher
>>> EnergieSpar-Bodenplatte, Schwedenhaus stilvoll mit schönen Details ...
Schwedisches Holzhaus - Bitburg / Rheinland-Pfalz
Juni 2021...Schweden-Holzhaus Projekt...Niedrigenergie-Holzhaus, Nähe Trier, in Rheinland-Pfalz im Eifelkreis Bitburg-Prüm...
>>> Galerie Schwedenhaus - Schöner Wohnen
Schwedisches Holzhaus - Trier / Rheinland-Pfalz
Juni 2021...neues Holzhaus Projekt...Schweden-Holzhaus Bungalow, KfW Effizienzhaus 55 - Trier, in Rheinland-Pfalz...
>>> EnergieSpar-Bodenplatte, energiesparend, lichtdurchflutete Räume...
Schwedisches Holzhaus - Bremen / Niedersachsen
Juni 2021...neues Holzhaus Projekt...Schweden-Holzhaus 1,5 geschossig, KfW Effizienzhaus 55 - N. Bremen / Niedersachsen...
>>> EnergieSpar-Bodenplatte, energiesparend, giebelseitige Eingangsveranda...
Schwedenhaus Projekt Rheinland-Pfalz, N.Luxembourg
Mai 2021...aktuelles Schwedenhaus Projekt...Holzhaus in Rheinland-Pfalz, Nähe Luxemburg, im Landkreis Trier-Saarburg...
>>> KfW Effizienzhaus 55, Kellergeschoss mit Garage, Holzhaus mit Glasgiebel, Panoramafenster...
Skandinavisches Holzhaus-Projekt - Rheinland-Pfalz
Januar 2021...aktuelles Holzhaus Projekt...Schweden-Holzhaus, KfW Effizienzhaus 55 - Nähe Trier-Bitburg, in Rheinland-Pfalz im Eifelkreis Bitburg-Prüm...
>>> EnergieSpar-Bodenplatte, überdachter Eingangsbereich, Klön-Türe zur Küche...
Schwedenhaus Projekt Rheinland-Pfalz, N.Luxembourg
Januar 2021...aktuelles Schwedenhaus Projekt...Holzhaus in Rheinland-Pfalz, nähe Luxemburg, in Rheinland-Pfalz im Eifelkreis Bitburg-Prüm...
...
>>> EnergieSpar-Bodenplatte, Luft-Wasser-Wärmepumpe, Galerie und vieles mehr...
Schwedenhaus Projekt Rheinland-Pfalz, N.Luxembourg
Januar 2021...aktuelles Schwedenhaus Projekt...Holzhaus in Rheinland-Pfalz, nähe Luxemburg, im Landkreis Trier-Saarburg...
>>> Kellergeschoss mit Garage, Glasgiebel, Luft-Wasser-Wärmepumpe...
Original Schwedenhaus, frohe Weihnachten 2020
Dezember 2020...das Land-Immobilien-Team wünscht frohe Weihnachten...
...Merry Christmas, God Jul, Joyeux Noël...
Schwedenhaus-Projekt - Rheinland-Pfalz
Dezember 2020...neues Holzhaus Projekt...Schweden-Holzhaus, KfW Effizienzhaus 55 - Nähe Trier,
in der Eifel - im Eifelkreis Bitburg-Prüm, Verbandsgemeinde Speicher
>>> EnergieSpar-Bodenplatte, energiesparend, stilvoll mit schönen Details ...
Schwedenhaus Projekt Eifel,Rheinland-Pfalz
November 2020...aktuelles Schwedenhaus Projekt...Holzhaus in Rheinland-Pfalz, Nähe Wittlich/Cochem - in der Eifel, im Landkreis Cochem-Zell...
>>> Aufbau Schwedenhaus, KfW-55 Effizienzhaus
Skandinavisches Holzhaus-Projekt - Rheinland-Pfalz
November 2020...aktuelles Holzhaus Projekt...Schweden-Holzhaus, KfW Effizienzhaus 55 - Nähe Trier-Bitburg, in Rheinland-Pfalz im Eifelkreis Bitburg-Prüm...
>>> EnergieSpar-Bodenplatte, überdachter Eingangsbereich, Klön-Türe zur Küche...
Schwedenhaus Projekt Eifel,Rheinland-Pfalz
Oktober 2020...aktuelles Schwedenhaus Projekt...Holzhaus in Rheinland-Pfalz, Nähe Mosel - in der Eifel, im Landkreis Cochem-Zell...
>>> Vorbereitung für die EnergieSpar-Bodenplatte, KfW-55 Effizienzhaus
Skandinavisches Holzhaus-Projekt - Rheinland-Pfalz
Oktober 2020...neues Holzhaus Projekt...Schweden-Holzhaus, KfW Effizienzhaus 55 - Nähe Trier-Bitburg, in Rheinland-Pfalz im Eifelkreis Bitburg-Prüm...
>>> EnergieSpar-Bodenplatte, überdachter Eingangsbereich, Luft-Wasser-Wärmepumpe...
Skandinavische Bungalow-Projekte - Rheinland-Pfalz
Juni 2020...neue Holzhaus Projekte...Schweden-Holzhaus Bungalows, KfW Effizienzhaus 55 - Nähe Trier, in Rheinland-Pfalz...
>>> EnergieSpar-Bodenplatten, energiesparend, sehr stilvolle Varianten...
Schwedenhaus Projekt Nähe Wittlich,Rheinland-Pfalz
März 2020...aktuelles Schwedenhaus Projekt...Holzhaus in Rheinland-Pfalz - in der Eifel, im Landkreis Cochem-Zell...
>>> >Glasgiebel, Galerie, Panoramafenster, Luft-Wasser-Wärmepumpe...
Schwedenhaus Projekt Nähe Trier, Luxembourg
Februar 2020...aktuelles Schwedenhaus Projekt...Holzhaus in Rheinland-Pfalz, nähe Luxemburg, im Landkreis Trier-Saarburg...
>>> >Kellergeschoss mit Garage, Veranda, Luft-Wasser-Wärmepumpe...
Skandinavisches Holzhaus-Projekt - Rheinland-Pfalz
Dezember 2019...neues Holzhaus Projekt...Schweden-Holzhaus, KfW Effizienzhaus 55 - Nähe Trier-Bitburg, in Rheinland-Pfalz im Eifelkreis Bitburg-Prüm...
>>> EnergieSpar-Bodenplatte, Veranda, Luft-Wasser-Wärmepumpe...
Schwedenhaus Projekt Nähe Trier, Luxembourg
November 2019...aktuelles Schwedenhaus Projekt...Schwedenhaus Fladen 143 Spezial in Rheinland-Pfalz, grenznah zu Luxemburg, im Landkreis Trier-Saarburg...
>>> EnergieSpar-Bodenplatte, Veranda, Luft-Wasser-Wärmepumpe...
Skandinavisches Holzhaus-Projekt - Rheinland-Pfalz
November 2019...neues Holzhaus Projekt...Schweden-Holzhaus, KfW Effizienzhaus 55 - Nähe Trier, in Rheinland-Pfalz im Eifelkreis Bitburg-Prüm...
>>> EnergieSpar-Bodenplatte, Veranda, Luft-Wasser-Wärmepumpe...
Neues Holzhaus - Chalet 110
Oktober 2019...aktuelles Holzhaus-Projekt...Holzhaus "Chalet 110", KfW Effizienzhaus 40 - Nähe Trier, in Rheinland-Pfalz...
>>> Glasgiebel, überdachte Terrasse, Eingangsveranda, 2 Wohneinheiten...
Neues Schwedenhaus Projekt in Rheinland-Pfalz
August 2019...aktuelle Schwedenhaus Projekte in der Vorbereitung...Schweden-Holzhäuser in 1- und 1,5-geschossiger Bauweise. Aktuell Bauanträge und Baugenehmigungen Nähe Bitburg/Eifel und im Raum Ravensburg/Oberschwaben...
>>> z. B. Holzhaus-Bungalow Typen aus der Trubaduren-Serie - mit überdachten Eingangs- und Terrassenbereichen, Garagen-/Geräteraum-Kombinationen...
Neues Schwedenhaus Projekt in Baden-Württemberg
Juli 2019...aktuelles Schwedenhaus Projekt...
>>> und weitere neue Holzhaus-Projekte im Landkreis Trier-Saarburg, Eifelkreis Bitburg-Prüm, Landkreis Ravensburg - in Rheinland-Pfalz und Baden Württemberg...
Skandinavisches Bungalow-Projekt - Rheinland-Pfalz
April 2019...neues Holzhaus Projekt...Schweden-Holzhaus Bungalow, KfW Effizienzhaus 55 - Nähe Trier, in Rheinland-Pfalz...
>>> EnergieSpar-Bodenplatte, überdachte Terrasse, erhöhte Decke im Wohnbereich...
Skandinavisches Holzhaus-Projekt - Rheinland-Pfalz
März 2019...skandinavisches Design...Schweden-Holzhaus, KfW Effizienzhaus 40 - Nähe Trier, in Rheinland-Pfalz...
>>> überdachte Eingangsveranda, überdachte Terrasse, Einliegerwohnung, Vollunterkellerung...
Schwedenhäuser Feburar 2019 - in Rheinland-Pfalz
Februar 2019... ***Firmenjubiläum - 25 Jahre Land-Immobilien***...Besichtigen Sie unsere Musterhäuser...
>>> neues Bauherren-Musterhaus, Endenergiebedarf mit 13,4 kWh/(m²a)
Schwedenhäuser Januar 2019 - in Rheinland-Pfalz
Januar 2019... ***Firmenjubiläum - 25 Jahre Land-Immobilien***...Besichtigen Sie unsere Musterhäuser...
>>> seit 1994 "natürlich schöne Häuser"... Landhäuser, Schwedenhäuser, Bauernhäuser und andere schöne Einfamilienhäuser
Schwedenhaus Bungalow N. Bitburg - Rheinland-Pfalz
Dezember 2018...Einzug vor Weihnachten...Schweden-Holzhaus Bungalow, KfW Effizienzhaus 55 - Nähe Trier, in Rheinland-Pfalz...
>>> Galerie Schwedenhaus Weihnachten 2018
Schwedenhaus November 2018 in Rheinland-Pfalz
Nobember 2018... Holzhaus Projekt...Schweden-Holzhaus, Niedrigenergiehaus - Hermeskeil, in Rheinland-Pfalz...
>>> Niedrigenergie-Schwedenhaus, EnergieSpar-Bodenplatte mit Fußbodenheizung, viele schöne Details ...
Schwedenhaus Projekt in Rheinland-Pfalz-Nähe Trier
Nobember 2018...neues Holzhaus Projekt...Schweden-Holzhaus, Niedrigenergiehaus - Hermeskeil, in Rheinland-Pfalz...
>>> Niedrigenergie-Schwedenhaus, EnergieSpar-Bodenplatte mit Fußbodenheizung, viele schöne Details ...
Schwedenhaus Oktober 2018, Bayern - München
Oktober 2018...fertiggestelltes Holzhaus...Schweden-Holzhaus Bungalow, Niedrigenergiehaus - Nähe München, in Bayern...
>>> Fassadenfarbe, Dachkonstruktion mit Kathedraldecke, Terrassentüren zum Garten...
Schwedenhaus Projekt, Bayern - München
September 2018...neues Holzhaus Projekt...Schweden-Holzhaus Bungalow, Niedrigenergiehaus - Nähe München, in Bayern...
>>> Niedrigenergie Schwedenhaus - Dachkonstruktion mit Kathedraldecke, 1-geschossige Bauweise...
Skandinavisches Bungalow-Projekt, Bayern-München
August 2018...neues Holzhaus Projekt...Schweden-Holzhaus Bungalow, Niedrigenergiehaus - Nähe München, in Bayern...
>>> EnergieSpar-Bodenplatte - Vorbereitungen für das Schwedenhaus...
Schweden Musterhaus Garten, Rheinland-Pfalz-Trier
August 2018...unser Schweden Musterhaus Garten in Rheinland-Pfalz, in Osburg - Nähe Trier... von 1998 bis 2018, vom Neubaugrundstück zum Landhaus Garten..
>>>20 Jahre Schwedenhäuser von Land-Immobilien - Herzlich Willkommen in unserem Schweden Musterhaus...
Neues Schwedenhaus Projekt in Rheinland-Pfalz
Juli 2018...aktuelles Schwedenhaus Projekt..
>>> und weitere neue Holzhaus-Projekte im Landkreis Trier-Saarburg, Eifelkreis Bitburg-Prüm, Landkreis Ebersberg - in Rheinland-Pfalz und Bayern...
Skandinavisches Holzhaus-Projekt - Rheinland-Pfalz
Juni 2018...neues Holzhaus Projekt...Schweden-Holzhaus, KfW Effizienzhaus 40 - Nähe Trier, in Rheinland-Pfalz...
>>> überdachte Eingangsveranda, überdachte Terrasse, Vollunterkellerung...
Skandinavisches Bungalow-Projekt - Rheinland-Pfalz
Juni 2018...neues Holzhaus Projekt...Schweden-Holzhaus Bungalow, KfW Effizienzhaus 55 - Nähe Trier, in Rheinland-Pfalz...
>>> überdachte Eingangsveranda, erhöhte Decke im Wohnbereich...
Bitburg-Aktuelles Schwedenhaus Projekt, Mai 2018
Mai 2018...ein neues Schwedenhaus in Rheinland-Pfalz... Schwedenhaus mit traditioneller schwedischer Eingangsveranda, Montage in Rheinland-Pfalz, im Eifelkreis Bitburg-Prüm, Nähe Trier und Luxemburg...
>>>Effizienzhaus, Luft-/Wasser-Wärmepumpe, Kathedraldecke, Eingangsveranda...
Unser Schweden Musterhaus Rheinland-Pfalz, Trier
März 2018...unser Schweden Musterhaus in Rheinland-Pfalz, in Osburg - Nähe Trier...Besichtigen Sie auch viele andere gebaute Holzhäuser und sprechen Sie z. B. mit unseren Kunden/Bauherren ...
>>>Herzlich Willkommen in unserem Schweden Musterhaus...
Neues Schwedenhaus Projekt in Rheinland-Pfalz
Januar 2018...aktuelle Schwedenhaus Projekte in der Vorbereitung...Schweden-Holzhäuser in 1-geschossiger Bauweise. Aktuell Bauanträge Nähe Bitburg und im Raum München...
>>> Holzhaus-Bungalow Typen aus der Trubaduren-Serie - mit Eingangsveranden, überdachten Terrassen, Garagen-/Carport-Kombinationen...
Skandinavisches Holzhaus-Projekt, Rheinland-Pfalz
Dezember 2017...neues Niedrigenergie-Holzhaus Projekt...Schweden-Holzhaus - Nähe Trier/Hermeskeil - im Ruwertal, Landkreis Trier-Saarburg in Rheinland-Pfalz...
>>> Effizienzhaus, Vollunterkellerung, versetztes Pultdach, Fußboden-/Wand-/Deckenheizung...
Neues Schwedenhaus Projekt in Rheinland-Pfalz
Nobember 2017...aktuelles Schwedenhaus Projekt in der Vorbereitung...
>>> und weitere neue Holzhaus-Projekte im Landkreis Trier-Saarburg, Eifelkreis Bitburg-Prüm, Landkreis Ebersberg - in Rheinland-Pfalz und Bayern...
Schweden-Holzhaus-Projekt, Rheinland-Pfalz
Oktober 2017...ein Schwedenhaus in Osburg...weitere neue Holzhaus-Projekte - Nähe Biturg/Eifel, Waldrach, Hermeskeil und München...
>>> aktuelle Projekte mit EnergieSpar-Bodenplatten, Abluft-Wärmepumpen, Wandheizungen...
Schwedenhaus Innentüren von Swedoor
September 2017...Produkte aus unserem Lieferprogramm/Innentüren...klassische- und moderne Innentüren
>>>Swedoor Innentüren
Skandinavisches Holzhaus-Projekt, Rheinland-Pfalz
August 2017...neues Holzhaus Projekt...Schweden-Holzhaus - Nähe Trier-Hermeskeil-Thalfang, im Landkreis Bernkastel-Wittlich in Rheinland-Pfalz...
>>> Vollunterkellerung, überdachter Eingang, 2 große Gauben...
Skandinavisches Holzhaus-Projekt, Rheinland-Pfalz
Juli 2017...neues Holzhaus Projekt...Schweden-Holzhaus - Nähe Trier-Luxemburg, in Rheinland-Pfalz...
>>> Vollunterkellerung, überdachter Eingang, Balkon, Mansarddach...
Skandinavisches Bungalow-Projekt in Süddeutschland
Juni 2017...neues Holzhaus Projekt...Schweden-Holzhaus Bungalow mit EnergieSpar-Bodenplatte - Nähe Stuttgart, in Baden-Württemberg...
>>> EnergieSpar-Bodenplatte, überdachter Eingang, erhöhte Decken im Wohnbereich...
Aktuelle Schwedenhäuser, N. Trier- Rheinland-Pfalz
Mai 2017...aktuelle Schwedenhaus Projekte ...fertiggestellte Holzhaus-Projekte in Rheinland-Pfalz...z.B. Nähe Trier, im Landkreis-Trier-Saarburg...
Schwedenhaus Projekt Nähe Luxembourg und Trier
April 2017...aktuelles Holzhaus Projekt in der Vorbereitung...Schwedenhaus in Rheinland-Pfalz, grenznah zu Luxemburg, im Landkreis Trier-Saarburg...
Neues Holzhaus Chalet 110 mit Einliegerwohnung
März 2017...aktuelles Holzhaus Projekt...individuelles Schweden- Holzhaus mit Einliegerwohnung - Nähe Trier, in Rheinland-Pfalz...
>>> großer Glasgiebel, überdachte Terrasse, Eingangsveranda, 2 Wohneinheiten, Erdwärmeheizung...
Aktuelles Schwedenhaus Projekt, Januar 2017
Januar 2017...ein neues Holzhaus in Rheinland-Pfalz... schwedischer Landhausstil, Aufbau im Landkreis-Trier-Saarburg, grenznah zum Saarland...
Aktuelles Schwedenhaus Projekt, Dezember 2016
Dezember 2016...ein neues Schwedenhaus in Rheinland-Pfalz... Schwedenhaus mit traditioneller schwedischer Eingangsveranda, Montage in Rheinland-Pfalz, im Landkreis-Trier-Saarburg, Nähe Trier und Luxemburg...
Neues Holzhaus Chalet 110
November 2016...aktuelles Holzhaus-Chalet Projekt...Holzhaus "Chalet 110", Planung u. Ausführung nach aktueller EnEV, KfW Effizienzhaus 40 - Nähe Trier, in Rheinland-Pfalz...
>>> Glasgiebel, überdachte Terrasse, Eingangsveranda, 2 Wohneinheiten, demnächst mehr...
Aktuelles Schwedenhaus Projekt, Oktober 2016
Oktober 2016...weitere neue Schwedenhäuser in Rheinland-Pfalz... großes Schwedenhaus mit schönen skandinavischen Stilelementen, Aufbau im Landkreis-Trier-Saarburg, in Rheinland-Pfalz...
Aktuelles Schwedenhaus Projekt, Oktober 2016
Oktober 2016...ein neues Schwedenhaus in Rheinland-Pfalz... Schwedenhaus im traditionellen schwedischen Landhausstil, Aufbau im Landkreis-Trier-Saarburg, Nähe Trier und Luxemburg...
Aktuelles Schwedenhaus Projekt in Rheinland-Pfalz
September 2016...ein neues Schwedenhaus in Rheinland-Pfalz... Abladen der insgesamt 5 LKWs, Aufbau im Landkreis-Trier-Saarburg, Nähe Trier und Luxemburg...
Aktuelles Schwedenhaus Projekt, Nähe Trier
September 2016...ein neues KfW-Effizienzhaus 40... Baugrundstücksvorbereitung für ein Holzhaus im Landkreis-Trier-Saarburg, in Rheinland-Pfalz...
Neue Schwedenhaus Projekte in Rheinland-Pfalz
Vorschau September/Oktober 2016...aktuelle Schwedenhaus Projekte in der Vorbereitung...diverse Holzhaus- und Schwedenhaus-Projekte Nähe Trier, Hermeskeil und Luxemburg - in Rheinland-Pfalz...
Aktuelles Schwedenhaus Projekt in Mönchengladbach
August 2016...Schwedenhaus in Mönchengladbach... Einzug nach nur 4 Monaten Bauzeit. Schwedenhaus Garpen Spezial, im Regierungsbezirk Düsseldorf, Nordhrein-Westfalen...
Neues Schwedenhaus Projekt in Rheinland-Pfalz
Juni 2016...aktuelles Schwedenhaus Projekt in der Vorbereitung...und weitere neue Schwedenhaus-Projekte im Landkreis Trier-Saarburg, Nähe Trier und Luxemburg - in Rheinland-Pfalz...
Aktuelles Schwedenhaus - Trubaduren 116
Mai 2016...aktuelles Schwedenhaus Trubaduren 116 ...neue Schwedenhaus-Projekte in Rheinland-Pfalz und Baden-Württemberg...z.B. in Bad Urach am Fuße der Schwäbischen Alb im Landkreis Reutlingen...
Neues Schwedenhaus Projekt in Rheinland-Pfalz
April 2016...aktuelles Schwedenhaus Projekt in der Vorbereitung...und weitere neue Schwedenhaus-Projekte im Landkreis Trier-Saarburg, Nähe Trier und Luxemburg - in Rheinland-Pfalz...
Neues Holzhaus Projekt, KfW-Effizienzhaus 55
März 2016...aktuelles Schwedenhaus Projekt mit Einliegwerwohnung in der Vorbereitung...Holzhaus + Kellergeschoss, Planung u. Ausführung nach neuester EnEV ab 2016, KfW Effizienzhaus, KfW 55 - Nähe Trier, in Rheinland-Pfalz...
>>>Schwedenhaus mit Einliegerwohnung bzw. 2 Wohneinheiten, demnächst mehr...
Neues Schwedenhaus Projekt in Osburg, Nähe Trier
März 2016...aktuelles Schwedenhaus Projekt in der Vorbereitung...neueste, drehzahlvariable Sole/Wasser-Wärmepumpe für ein Holzhaus-Projekt in Osburg - Nähe Trier und Luxemburg - in Rheinland-Pfalz...
weitere Informationen>>>neueste Technik von NIBE [916 KB]
Neues Schwedenhaus Projekt, Nähe Trier...
Feburar 2016...aktuelle Schwedenhaus Projekte in der Vorbereitung...Schwedenhaus C-012, Rheinland-Pfalz, Nähe Trier
>>>Bildergalerie - das Holzhaus C-012, schwedische Holzfassade - lliegend
Aktuelle Schwedenhaeuser in Nordrhein-Westfalen...
Februar 2016...aktuelle Baustellenbilder ...neue Schwedenhäuser in Rheinland-Pfalz und Nordrhein-Westfalen...hier Schwedenhaus Mönchengladbach
>>>Bildergalerie - Montage Schwedenhaus, aktuelle Bilder Februar 2016
Aktuelle Schwedenhaeuser in Rheinland-Pfalz...
Februar 2016...aktuelle Baustellenbilder ...neue Schwedenhäuser in Rheinland-Pfalz und Nordrhein-Westfalen...hier Nähe Trier
>>>Bildergalerie - Montage Schwedenhaus, aktuelle Bilder Februar 2016
Aktuelles Schwedenhaus in Rheinland-Pfalz, N Trier
Januar 2016...aktuelle Baustellenbilder ...ein neues Schwedenhaus in Rheinland-Pfalz - in Konz, Nähe Trier und Luxembourg... skandinavische Holzhaus Architektur in 1,5- und 1-geschossiger Kombination...
>>>Bildergalerie - Montage Schwedenhaus, aktuelle Bilder Januar 2016
Aktuelles Schwedenhaus Projekt - Nähe Trier
Dezember 2015...aktuelles Holzhaus Projekt in der Vorbereitung...Schwedenhaus in Rheinland-Pfalz, Nähe Trier, im Landkreis Trier-Saarburg...
>>>erste Bilder, Projekte 2016 - Schwedenhaus C-12 Spezial
Aktuelles Schwedenhaus - Nähe Kaiserslautern
Oktober 2015...die Bauherren sind eingezogen. ...ein wunderschönes neues Schwedenhaus in Rheinland-Pfalz, Nähe Kaiserslautern... noch während der Malerarbeiten...
>>> erste Bilder, Schwedenhaus mit weißer Fassade
Aktuelles Schwedenhaus in Rheinland-Pfalz, Hessen
Oktober 2015...aktuelle Baustellenbilder ...ein neues Schwedenhaus an der Landesgrenze Rheinland-Pfalz - Hessen... skandinavische Holzarchitektur mit Glasgiebel und Veranda...
>>>BildergalerieMontage Schwedenhaus, aktuelle Bilder Oktober 2015
Schwedenhaus Projekt in Rheinland-Pfalz
Oktober 2015...aktuelles Holzhaus Projekt kurz vor Baubeginn... Schwedenhaus Vision 71 Spezial mit Glasgiebel, Rheinland-Pfalz...
Schwedenhaus Projekt in Mönchengladbach
September 2015...aktuelles Holzhaus Projekt kurz vor Baubeginn... Schwedenhaus Garpen Spezial, im Regierungsbezirk Düsseldorf, Nordhrein-Westfalen...
Schwedenhaus Projekt in Konz, N. Trier, Luxembourg
September 2015...aktuelles Schwedenhaus Projekt kurz vor Baubeginn...Schwedenhaus Symfoni 8 Spezial in Rheinland-Pfalz, grenznah zu Luxemburg, im Landkreis Trier-Saarburg...
Schwedenhaus nach vielen Jahren - Modell Excellent
August 2015...das Schwedenhaus nach vielen Jahren ... die Schwedenhaus-Serie "Excellent"
>>>Bildergalerie
Schwedenhaus Projekt Nähe Luxembourg und Trier
August 2015...aktuelles Holzhaus Projekt in der Vorbereitung...Schwedenhaus in Rheinland-Pfalz, grenznah zu Luxemburg, im Landkreis Trier-Saarburg...
Aktuelles Schwedenhaus - Rheinland-Pfalz, Hessen
Juli 2015...die Bauherren sind eingezogen. ...ein wunderschönes neues Schwedenhaus in Rheinland-Pfalz, Nähe Trier und Luxemburg... moderne Holzarchitektur mit versetztem Pultdach...
>>> Bildergalerie, modernes Schwedenhaus
Schwedenhäuser nach vielen Jahren - Region Trier
Juni 2015...das Schwedenhaus nach vielen Jahren ... von uns gebaute Schwedenhäuser im Großraum Rheinland-Pfalz, Saarland, Luxemburg...
Aktuelles Holzhaus Projekt in Rheinland-Pfalz
Juni 2015...aktuelles Schwedenhaus Projekt in Rheinland-Pfalz...Schwedenhaus Vision 71 Spezial, im Rhein-Lahn-Kreis...
Aktuell Schwedenhaus Vintage Living
April 2015...die neuen Kataloge sind da. Schwedenhaus "Exclusive Vintage Living"... natürlich schöne Häuser aus Schweden. Kataloge jetzt bei uns im Schweden-Musterhaus...
Aktuelles Schwedenhaus in Rheinland-Pfalz
April 2015...die Bauherren sind eingezogen. ...ein wunderschönes neues Schwedenhaus in Rheinland-Pfalz, Nähe Trier und Luxemburg...
>>>Bildergalerie
Aktuelles Schwedenhaus Projekt im Saarland
April 2015...aktuelle Holzhaus Projekte in der Vorbereitung...unser Schwedenhaus Klassiker - Haustyp "Malmö". Ab 104 m² Wohnfläche...
Aktuelles Holzhaus Projekt in Mönchengladbach...
März 2015...aktuelles Schwedenhaus Projekt in Nordrhein-Westfalen...Schwedenhaus Garpen Spezial, im Regierungsbezirk Düsseldorf...
Aktuelles Schwedenhaus Projekt Nähe Trier...
März 2015...aktuelle Holzhaus Projekte in der Vorbereitung...2 Schwedenhäuser in Rheinland-Pfalz, im Landkreis Trier-Saarburg...
Aktuelles Schwedenhaus Projekt in Trippstadt...
Feburar 2015...aktuelles Schwedenhaus Projekt in Rheinland-Pfalz...Schwedenhaus Garpen Spezial, im Landkreis Kaiserslautern...
Aktuelles Schwedenhaus Projekt in Osburg...
Feburar 2015...aktuelles Holzhaus Projekt in Rheinland-Pfalz...Schwedenhaus Garpen 138, im Landreis Trier-Saarburg...
Neues Schwedenhaus Projekt, Nähe Trier...
Feburar 2015...aktuelle Schwedenhaus Projekte in der Vorbereitung...Schwedenhaus Vinga 130, Nähe Trier...
Neues Schwedenhaus Projekt, Nähe Trier...
Feburar 2015...aktuelle Holzhaus Projekte in der Vorbereitung...Schwedenhaus Symfoni 8, Nähe Konz...
Neues Schwedenhaus Projekt, Baden-Württemberg...
Feburar 2015...aktuelle Holzhaus Projekte in der Vorbereitung...Schwedenhaus Symfoni 5, Baden-Württemberg...
Schwedenhaus Außentüren von Nordan
Januar 2015...Produkte aus unserem Lieferprogramm/Außentüren...klassische- und moderne Außentüren
>>>NorDan
>>>Produktkatalog
Schwedenhaus, Impressionen 2014
Schwedenhaus Impressionen 2014
Schwedenhaus V71 Spezial
Dezember 2014...Projektierung Schwedenhaus "V71 Spezial"...Bauantrag Nähe Limburg in Rheinland-Pfalz
Neue Schwedenhaus-Modelle, Holzhaus-Typen
Dezember 2014... "Vintage Living"... natürlich schöne Häuser aus Schweden... Kataloge jetzt bei uns im Musterhaus
Aktuelles Holzhaus-Projekt Nähe Trier
November 2014...aktuelles Holzhaus Projekt Nähe Trier/Luxemburg...Projektstart für ein Schwedenhaus in Rheinland-Pfalz, Nähe Luxemburg
Tiefbauarbeiten für aktuelles Schwedenhaus Projekt
November 2014...aktuelles Holzhaus Projekt Nähe Kaiserslautern...Projektstart für ein Schwedenhaus in Rheinland-Pfalz, Nähe Kaiserslautern
Schwedenhaus, "Alter Schwede" in Bestform
Oktober 2014...schwedisches Holzhaus in Osburg...gepflegtes Schwedenhaus aus den 1990er Jahren
Schwedenhaus, Bungalow in Rheinland-Pfalz
Oktober 2014...schwedischer Bungalow in Rheinland-Pfalz...Baulogistik, Feinabstimmung mit den Bauherren kurz vor der Montage
Holzhaus in der Region Trier, Saarburg, Luxemburg
September 2014...Holzhaus zwischen Trier und Saarburg...der Rohbau ist fertig, Beginn der Ausbauarbeiten
Schwedisches Fertighaus Nähe Trier
September 2014...Schwedenhaus in Rheinland-Pfalz, an der Saar...kurz nach Lieferung, das Holzhaus am Abend
Schwedenhaus in Rheinland-Pfalz, an der Saar
August 2014...Schwedenhaus in Rheinland-Pfalz, an der Saar..die Bauherren-Familie besichtigt die Tiefbauarbeiten
Schwedenhaus in Rheinland-Pfalz
August 2014...Schwedenhaus in Rheinland-Pfalz..die Bauherren-Familie, kurz vor Einzug in ihr neues Holzhaus
Holzhaus-Projekt Nähe Trier
Juli 2014...aktuelles Holzhaus Projekt Nähe Trier...Projektstart für ein Schwedenhaus-Bungalow in Rheinland-Pfalz, Nähe Luxemburg
Schwedenhaus Kataloge Deutschland
Juli 2014...neue Schwedenhaus-Kataloge...viele neue Holzhaus-Varianten, z. B. New England Style mit skandinavischem Flair
Schwedenhaus Baustelle
Juni 2014...Schwedenhaus-Montage in Rheinland-Pfalz, Nähe Saarland...neues Hausmodell und neue Produktdetails
Schwedenhaus Manfred Goldbach
Mai 2014...Schwedenhaus-Architektur fotografiert von Manfred Goldbach...ein klassisches Landhaus
Schwedenhaus Garpen - Spezial
April 2014...Projektierung Schwedenhaus "Garpen138 Spezial"...ein weiteres Niedrig-Energie-Schwedenhaus in Osburg
Schwedenhaus Garpen - Spezial
April 2014...Projektierung Schwedenhaus "Garpen Spezial"...Bauantrag in Rheinland-Pfalz
Jubiläum - 20 Jahre Land-Immobilien
März 2014...Veröffentlichung in Bauen und Wohnen -Trierischer Volksfreund...
>>> Jubiläum 20 Jahre Land-Immobilien Goldbach - 15 Jahre Schwedenhäuser in Osburg [1.172 KB]
Schwedenhaus in Rheinland-Pfalz - mit Bodenplatte
März 2014...ein Schwedenhaus mit Bodenplatte ...im Einklang zum Holzhaus der schöne Landhaus-Vorgarten...
Schwedenhaus in Deutschland - Kellerbau
März 2014...ein Schwedenhaus mit Vollunterkellerung
...oft gewünscht und aktuell in der Planung das Schwedenhaus mit Einliegerwohnung...
Neue Schwedenhaus Projekte Nähe Trier...
Feburar 2014...verschiedene Holzhaus Projekte in der Vorbereitung...Schwedenhaus Bungalow, Schwedenhaus Effizienhaus...
Schwedenhaus Baufinanzierung
Februar 2014...Produkte aus unserem Partnerprogramm...ausgezeichnete Baufinanzierung
>>> creditweb
Schwedenhaus Fenster
Januar 2014...Produkte aus unserem Lieferprogramm/Fenster...3-fach Super Energie Verglasung
>>> Elit...
Schwedenhaus B 011-Spezial
Dezember 2013...Projektierung Schwedenhaus "B:011 Spezial"...verschiedene Grundrisskonzepte
Schwedenhaus Fladen120-Spezial
Februar 2014...Projektierung Schwedenhaus "Trubaduren128 Spezial"...Bauantrag in Rheinland-Pfalz
Schwedenhaus Garpen155-Spezial
Dezember 2013...Projektierung Schwedenhaus "Garpen155 Spezial"...verschiedene Grundrisskonzepte
Schwedenhaus Dachpfannen
Dezember 2013...Produkte aus unserem Lieferprogramm/Dachpfannen...neu, 30 Jahre Garantie!
>>> ST:ERIKS
Schwedenhaus Fassadenfarben
November 2013...Produkte aus unserem Lieferprogramm/Fassadenfarben...ein Testsieger aus dem Jahr 2011!
>>>Engwall o. Claesson
Schwedenhaus nach vielen Jahren
Oktober 2013...das Schwedenhaus nach vielen Jahren ... eine kleine Auswahl...>>>Schwedenhaus von Land-Immobilien
Schwedenhaus "Vintage Living"
Oktober 2013...die neuen Kataloge sind da. "Vintage Living"... natürlich schöne Häuser aus Schweden. Kataloge jetzt bei uns im Musterhaus...
15 Jahre Schwedenhäuser von Land-Immobilien
2013...Jubiläum "15 Jahre Schwedenhäuser von Land-Immobilien". 1998 haben wir in Osburg unser erstes Schwedenhaus als Musterhaus gebaut. Nun sind es schon über 30 original schwedische Holzhäuser in der Region. Weitere Schwedenhäuser stehen in Bayern und in Luxemburg. In Osburg stehen mittlerweile 14 individuelle Schwedenhaus Varianten...
2013...Jubiläum "10 Jahre Thea's Glasstübchen". In diesem Jahr feiert Thea Martin das zehnjährige Bestehen ihres Glasstübchens in ihrem Schwedenhaus Bungalow "Symfoni 3"...
zu Thea´s Homepage
Schwedenhaus Bungalow "Symfoni 3"
| Klicken Sie hier, um zur Galerie zu gelangen. |
Schwedenhaus aus der Serie "Vintage Living"


















































































































































